Comunque i conti non tornano....

Se sull'atto all'immobile sono attribuiti 5,5 vani catastali, anche le planimetrie che dici di non aver visto, devono concordare e non sarebbe possibile senza le due camere nel sottotetto.

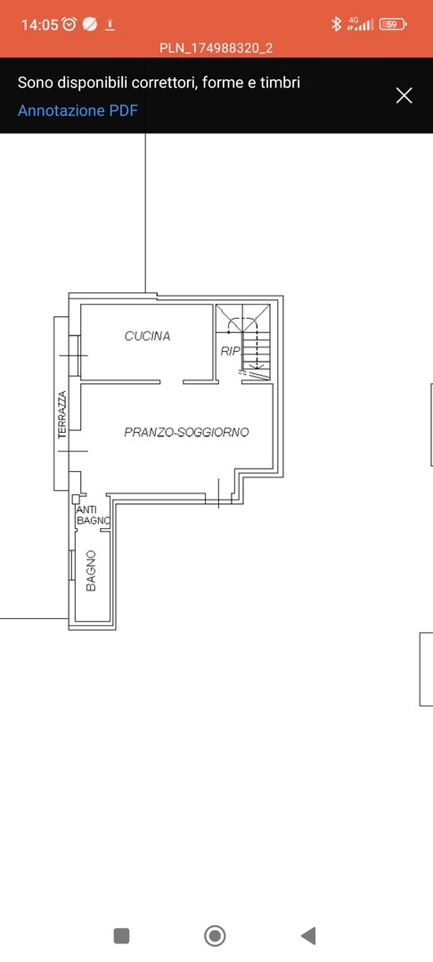
Da questa descrizione arriviamo circa a tre vani, qualcosa di più se aggiungiamo dei disimpegni....sicuro che le planimetrie a cui ti riferisci non siano le piante del progetto depositato in Comune?

Hai copia delle planimetrie e visura catastale?
Screenshot_2023-04-24-14-11-57-625_cn.wps.moffice_eng.jpg
Screenshot_2023-04-24-14-10-15-613_cn.wps.moffice_eng.jpg
 

Allegati

  • Screenshot_2023-04-24-14-11-57-625_cn.wps.moffice_eng.jpg
    Screenshot_2023-04-24-14-11-57-625_cn.wps.moffice_eng.jpg
    273,9 KB · Visualizzazioni: 69
Quindi i conti non tornavano perché la tua descrizione non era veritiera dato che vi sono molti vani in più di quanto hai scritto in precedenza.

I locali al piano superiore pare si possano recuperare ai fini abitativi, sicuro che ben tre tecnici ti abbiano detto non siano sanabili? Oppure sono sanabili ma solo pagando cifre importanti?
 

Quindi i conti non tornavano perché la tua descrizione non era veritiera dato che vi sono molti vani in più di quanto hai scritto in precedenza.

I locali al piano superiore pare si possano recuperare ai fini abitativi, sicuro che ben tre tecnici ti abbiano detto non siano sanabili? Oppure sono sanabili ma solo pagando cifre importanti?
Non sono assolutamente sanabili
 

Allegati

  • 1682341205535..jpg
    1682341205535..jpg
    146,5 KB · Visualizzazioni: 78
Non ho ancora visto le planimetrie catastali ed il progetto presentato che peraltro devono corrispondere per dimensioni ed altezze utili.
Mi auguro che si possa chiarire prima "che termini la carta".
 

Gratis per sempre!

  • > Crea Discussioni e poni quesiti
  • > Trova Consigli e Suggerimenti
  • > Elimina la Pubblicità!
  • > Informarti sulle ultime Novità

Le Ultime Discussioni

Indietro
Top